Italiano
2.900.000 €

Villa Piazza Amendola City Life

Villa in vendita • - Via Filippo Carcano
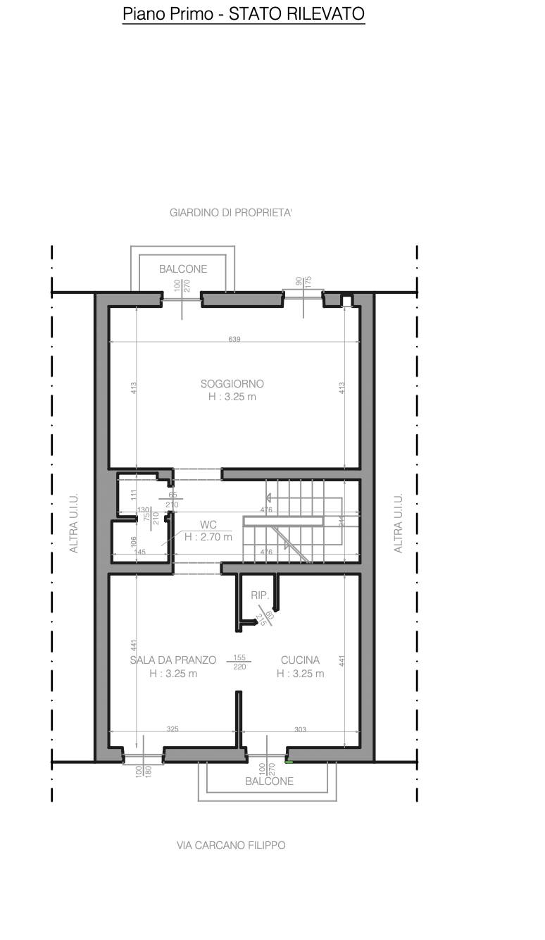
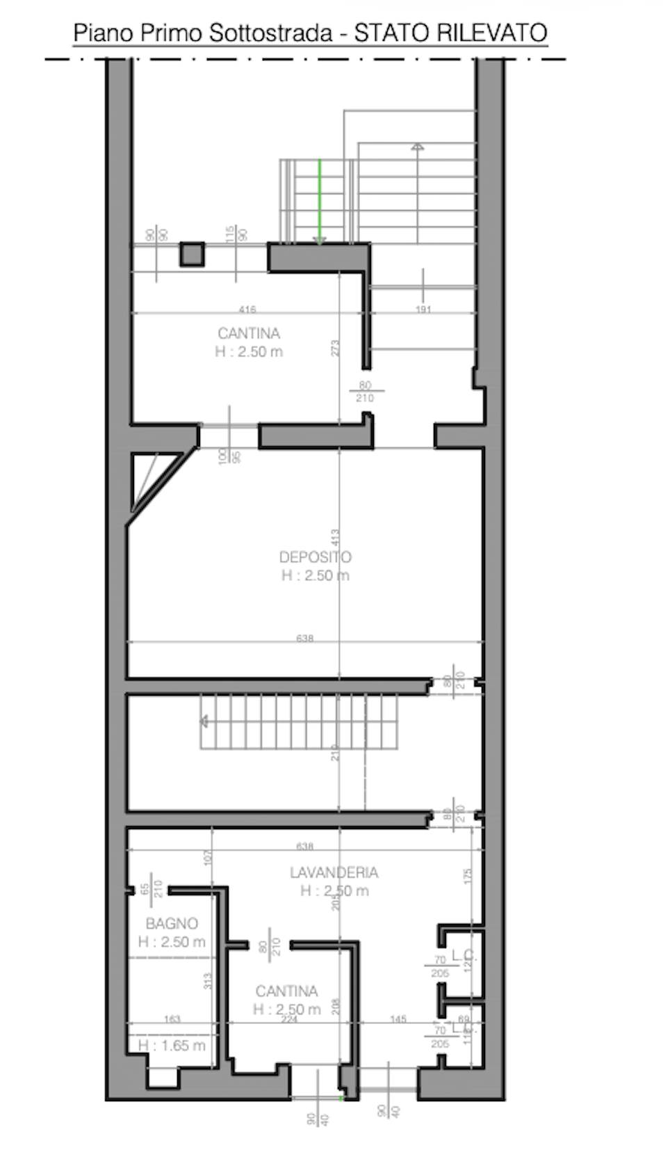
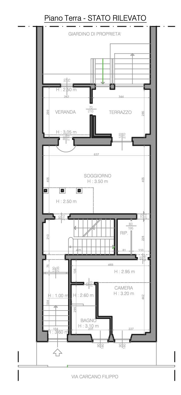
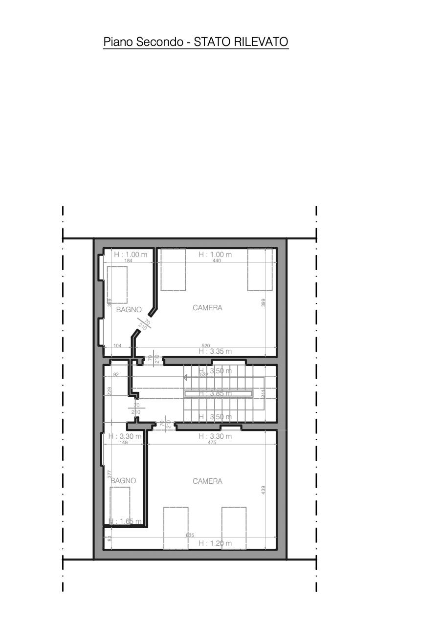
Questa prestigiosa villa in vendita nel comune di Milano si trova in una tranquilla via privata nelle vicinanze di parchi come City Life e numerosi supermercati e centri commerciali. La proprietà si estende su una superficie commerciale di 380mq ed è composta da 7 vani, 4 camere da letto e 5 bagni.

L'immobile gode di una classe energetica D e dispone di un box e un posto auto. Unico nel suo genere nella zona caratteristica, la villa vanta un ampio e curato giardino privato ideale per momenti di relax all'aria aperta. La vicinanza ad altre ville nelle immediate vicinanze conferisce ulteriore pregio alla location.

Il prezzo di vendita è di 2.900.000 euro, rendendo questa villa una vera occasione per chi desidera abitare in una residenza di prestigio nel cuore di Milano.
Caratteristiche principali
Codice
V000247
Categoria
Villa
Prezzo
2.900.000 €
Locali
7
Camere
4
Bagni
5
Mq
380
Box
1
Posti auto
1
Balconi
2
Terrazzi
1
Classe energetica
D
Stato Immobile
Buono
Grado
Signorile
Posizione
Lago
Lati Liberi
2
Giardino
Privato
Arredi
Non Arredato
Tipo Cucina
Abitabile
Riscaldamento
Autonomo
Tipo Riscaldam.
Caldaia a Condensazione
Tipo Impianto
Radiatori
Fonte Energetica
Metano
Acqua Calda
Autonoma
Raffrescamento
Split
Infissi
PVC Triplo Vetro
Serramenti
Nuovo
Persiana
Tapparella PVC
Pavim. Giorno
Parquet
Pavim. Notte
Parquet

Accessori: Antifurto, Aria Condizionata, Cancello Elettrico, Lavanderia, Passaggio Pedonale, Porta Blindata, Ripostiglio, Tripli Vetri, Vasca Idromassaggio, Veranda

Mappa
Via Filippo Carcano ,
Condividi su
Cookie preference